(32)235 96 35
Knurów ul. Niepodległości 16
Toggle navigation
Home
Oferta
Porady
Kontakt
OKNA Drewniane
Home
Okna
Okna Drewniane
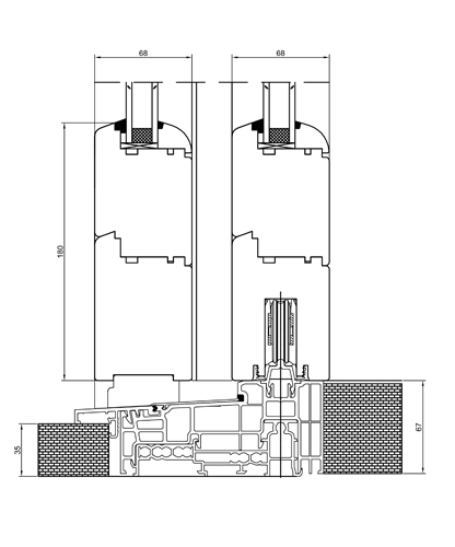
Naturo Slide mm
Specyfikacja
okno klejone z trzech warstw drewna
Elementy dodatkowe
Wszystkie elementy okien mogą być stosowane razem z całą gamą wyposażenia dodatkowego.
Dostępne są także szprosy wewnątrzszybowe o różnych szerokościach